Coup de coeur

Lyon (69003) Lyon 3e – Grange Blanche / Monplaisir

Réf : DK252508T4-B 299 000 €

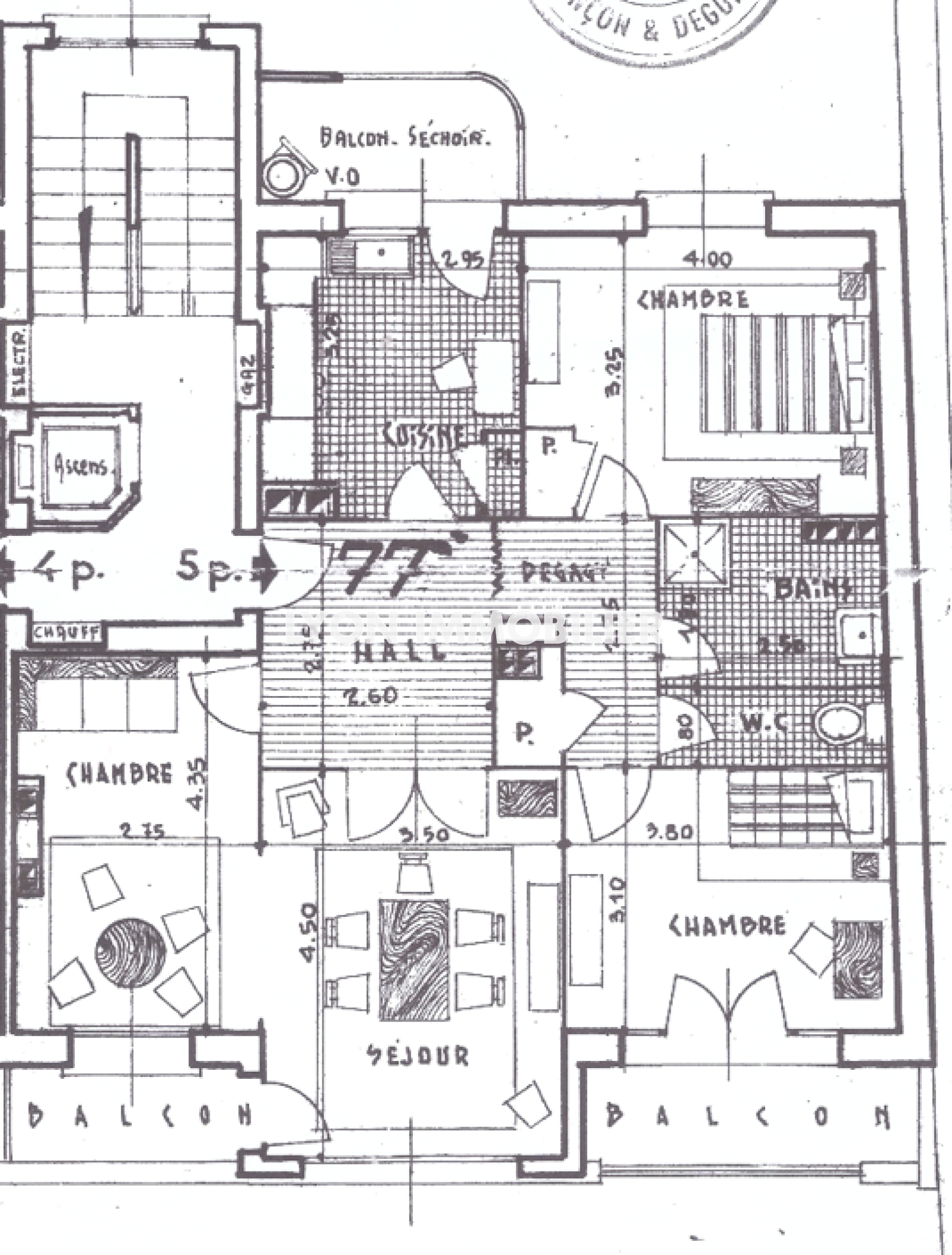
LYON IMMOBILIER vous propose ce grand 4 pièces traversant de 78 m² avec balcons et vue dégagée. Idéalement situé entre Grange Blanche et Monplaisir, à proximité immédiate des transports, écoles et commerces, cet appartement allie confort de vie, luminosité et fort potentiel d’aménagement.

Situé au 6e étage avec ascenseur d’une résidence sécurisée et bien tenue, il offre :

- Une entrée avec rangement

- Une cuisine équipée ouvrant sur balcon

- Un séjour double de 27 m² donnant sur deux loggias

- Deux chambres avec placards

- Salle d’eau et WC séparé

- Cave en sous-sol

- Garage possible à proximité

 Les points forts :

- Traversant Nord/Sud, lumineux et sans vis-à-vis

- Balcons et loggias pour vos moments extérieurs

- Plan modulable : possibilité de créer 3 à 4 chambres

- Secteur recherché par les familles comme les étudiants

 Double opportunité :

Pour une famille, un cadre de vie calme et pratique à proximité de tout

Pour un investisseur, un bien à fort potentiel locatif (colocation étudiante, LMNP, meublé)

Informations clés:

- Résidence de 38 lots, aucune procédure en cours

- DPE 2025 : entre 1 890 € et 2 610 € / an

- Métro D, Tram T2 / T5, bus, Vélo’v, Faculté de Médecine, Rockefeller, Manufacture desTabacs à proximité

 Contact : Didier KICHENIN – Lyon Immobilier

Au service du particulier et de l’investisseur depuis 1972


Les informations sur les risques auxquels ce bien est exposé sont disponibles sur le site Géorisques
TRAD_SIROCCO_Caracteristique Valeurs
Code postal 69003
Surface habitable (m²) 79 m²
Surface loi Carrez (m²) 79 m²
Nombre de chambre(s) 2
Nombre de pièces 4
Etage 6
Ascenseur OUI
Vue Dégagée
TRAD_SIROCCO_Caracteristique Valeurs
Nb de salle d'eau 1
Type de cuisine Equipée
Mode de chauffage Gaz de ville, Gaz
Type de chauffage TRAD_TYPE_CHAUFF_CHAUDIERE, TRAD_TYPE_CHAUFF_CHAUDIERE
Format de chauffage Individuel, Collectif
Balcon OUI
Cave OUI
Exposition Nord-Sud
Année de construction 1960
TRAD_SIROCCO_Caracteristique Valeurs
Copropriété OUI
nombre de lots 76
plan de sauvegarde NON
TRAD_SIROCCO_Caracteristique Valeurs
Prix de vente 299 000 €
Les honoraires d'agence seront intégralement à la charge du vendeur  
Taxe foncière annuelle 1 092 €
DPE GES

Montant estimé des dépenses annuelles d'énergie pour un usage standard est compris entre 1 890 € et 2 610 € . Prix moyens des énergies indexés sur les années 2021, 2022 et 2023 (abonnements compris).

  • Commerces et santé
  • Loisirs
  • Ecoles
  • Transports
  • Pratique

Nos outils

Imprimer
Intéressé(e) par Ce bien ?

* Champ obligatoire

contacter l'agence

Les informations recueillies sur ce formulaire sont enregistrées dans un fichier informatisé par La Boite Immo agissant comme Sous-traitant du traitement pour la gestion de la clientèle/prospects de l'Agence / du Réseau qui reste Responsable du Traitement de vos Données personnelles. La base légale du traitement repose sur l'intérêt légitime de l'Agence / du Réseau. Elles sont conservées jusqu'à demande de suppression et sont destinées à l'Agence / au Réseau. Conformément à la loi « informatique et libertés », vous disposez des droits d’accès, de rectification, d’effacement, d’opposition, de limitation et de portabilité de vos données. Vous pouvez retirer votre consentement à tout moment en contactant directement l’Agence / Le Réseau. Consultez le site https://cnil.fr/fr pour plus d’informations sur vos droits. Si vous estimez, après avoir contacté l'Agence / le Réseau, que vos droits « Informatique et Libertés » ne sont pas respectés, vous pouvez adresser une réclamation à la CNIL. Nous vous informons de l’existence de la liste d'opposition au démarchage téléphonique « Bloctel », sur laquelle vous pouvez vous inscrire ici : https://www.bloctel.gouv.fr Dans le cadre de la protection des Données personnelles, nous vous invitons à ne pas inscrire de Données sensibles dans le champ de saisie libre.
Ce site est protégé par reCAPTCHA, les Politiques de Confidentialité et les Conditions d'Utilisation de Google s'appliquent.

Ces biens peuvent aussi vous intéresser
Coup de coeur
Lyon (69003)

Lyon 3e – Grange Blanche / Monplaisir – T3 de 78 m² avec balcons et...

Coup de coeur
Lyon (69008)

T4 HAUT DE GAMME PROCHE MONPLAISIR

Nous suivre sur