Lyon (69003) Lyon 3e – Grange Blanche / Monplaisir – T3 de 78 m² avec balcons et vue dégagée

Réf : KICHENIN252508T3 299 000 €

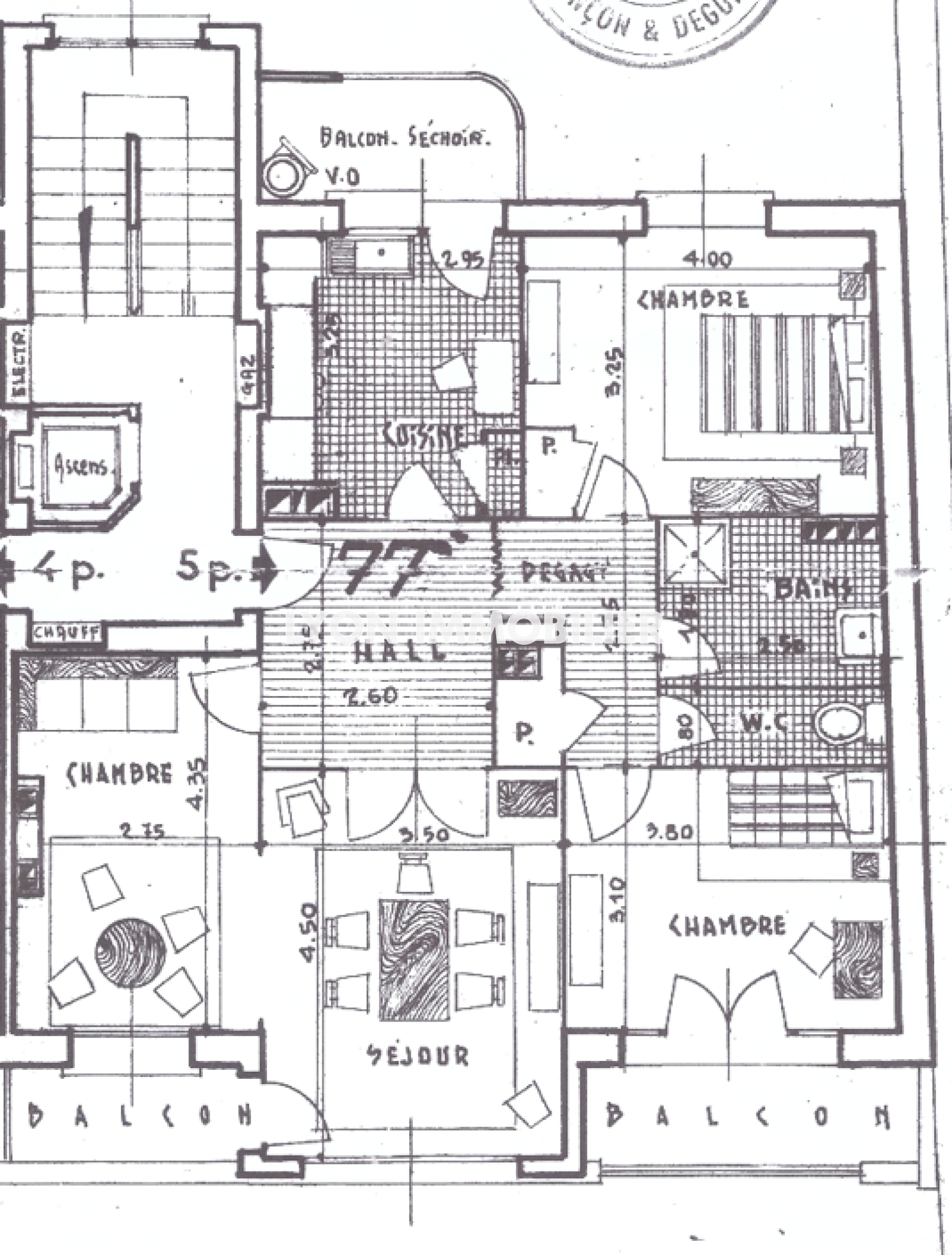
Situé dans un secteur recherché, à proximité immédiate du métro D et des commerces, cet appartement de 78 m² se trouve au 6ème étage avec ascenseur d’une résidence bien entretenue et sécurisée.

Traversant Nord/Sud, il offre une belle luminosité et une vue dégagée.
Il se compose :

  • d’une cuisine équipée ouvrant sur un balcon,
  • d’un séjour de 27 m² donnant sur deux loggias,
  • de deux chambres avec rangements,
  • d’une salle d’eau et de WC séparés.

Une cave complète le bien, avec possibilité de garage à proximité.
Le plan fonctionnel permet également la création d’une troisième chambre.

Le quartier bénéficie d’un accès rapide aux transports (métro D, tram T2/T5, bus), aux écoles, aux universités et à la Faculté de Médecine.

DPE 2025 : estimation entre 1 890 € et 2 610 €/an
Copropriété de 38 lots – aucune procédure en cours
Honoraires à la charge du vendeur

Contact : Didier Kichenin – Lyon Immobilier
Au service du particulier depuis 1972

LYON IMMOBILIER au service du particulier depuis 1972.


Les informations sur les risques auxquels ce bien est exposé sont disponibles sur le site Géorisques
TRAD_SIROCCO_Caracteristique Valeurs
Code postal 69003
Surface habitable (m²) 79 m²
Surface loi Carrez (m²) 79 m²
Nombre de chambre(s) 2
Nombre de pièces 3
Etage 6
Ascenseur OUI
Vue Dégagée
TRAD_SIROCCO_Caracteristique Valeurs
Nb de salle d'eau 1
Type de cuisine Equipée
Mode de chauffage Gaz de ville, Gaz
Type de chauffage TRAD_TYPE_CHAUFF_CHAUDIERE, TRAD_TYPE_CHAUFF_CHAUDIERE
Format de chauffage Individuel, Collectif
Balcon OUI
Cave OUI
Exposition Nord-Sud
Année de construction 1960
Quartier Monplaisir., Montchat
TRAD_SIROCCO_Caracteristique Valeurs
Copropriété OUI
nombre de lots 38
plan de sauvegarde NON
TRAD_SIROCCO_Caracteristique Valeurs
Prix de vente 299 000 €
Les honoraires d'agence seront intégralement à la charge du vendeur  
Charges 262 €
Taxe foncière annuelle 1 092 €
DPE GES

Montant estimé des dépenses annuelles d'énergie pour un usage standard est compris entre 1 890 € et 2 610 € . Prix moyens des énergies indexés sur les années 2021, 2022 et 2023 (abonnements compris).

  • Commerces et santé
  • Loisirs
  • Ecoles
  • Transports
  • Pratique

Nos outils

Imprimer
Intéressé(e) par Ce bien ?

* Champ obligatoire

contacter l'agence

Les informations recueillies sur ce formulaire sont enregistrées dans un fichier informatisé par La Boite Immo agissant comme Sous-traitant du traitement pour la gestion de la clientèle/prospects de l'Agence / du Réseau qui reste Responsable du Traitement de vos Données personnelles. La base légale du traitement repose sur l'intérêt légitime de l'Agence / du Réseau. Elles sont conservées jusqu'à demande de suppression et sont destinées à l'Agence / au Réseau. Conformément à la loi « informatique et libertés », vous disposez des droits d’accès, de rectification, d’effacement, d’opposition, de limitation et de portabilité de vos données. Vous pouvez retirer votre consentement à tout moment en contactant directement l’Agence / Le Réseau. Consultez le site https://cnil.fr/fr pour plus d’informations sur vos droits. Si vous estimez, après avoir contacté l'Agence / le Réseau, que vos droits « Informatique et Libertés » ne sont pas respectés, vous pouvez adresser une réclamation à la CNIL. Nous vous informons de l’existence de la liste d'opposition au démarchage téléphonique « Bloctel », sur laquelle vous pouvez vous inscrire ici : https://www.bloctel.gouv.fr Dans le cadre de la protection des Données personnelles, nous vous invitons à ne pas inscrire de Données sensibles dans le champ de saisie libre.
Ce site est protégé par reCAPTCHA, les Politiques de Confidentialité et les Conditions d'Utilisation de Google s'appliquent.

Ces biens peuvent aussi vous intéresser
Saint-Romain-en-Gal (69560)

Rez-de- jardin de 84m² sur Saint Romain en Gal

Nouveauté
Lyon (69003)

Lyon 3e – Grange Blanche / Monplaisir

Nous suivre sur